תיאור:
קיר מסך משמש לחיפוי חיצוני של הבניין ותפקידו להחדיר אור בכמות גדולה, על ידי יצירת מפתחים גדולים וגבוהים בגובה רצפה-תקרה ורחבים ככל הניתן ובכך נשקף גם נוף רחב,
כל זאת עם בידוד תרמי ואקוסטי ברמה גבוהה מאד על ידי מפרט זכוכית עם ציפויים מיוחדים.
מאחר שקיר המסך אינו רכיב הנושא ממשקל הבניין, ניתן לייצר אותו מחומרים קלי משקל ובכך, כגון אלומיניום ובכך להוזיל את עלויות הבנייה.
כל קיר מסך מתוכנן בקפידה על פי עומסי רוח וכוחות ססמיים לפי האזור בוא נבנה הבניין וכך נקבע מפרט הפרופילים ועובי הזכוכית,
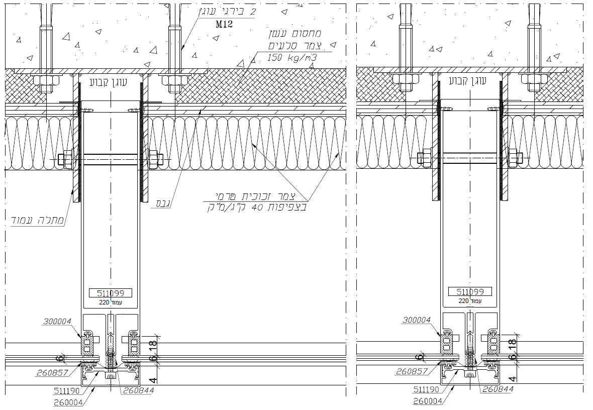
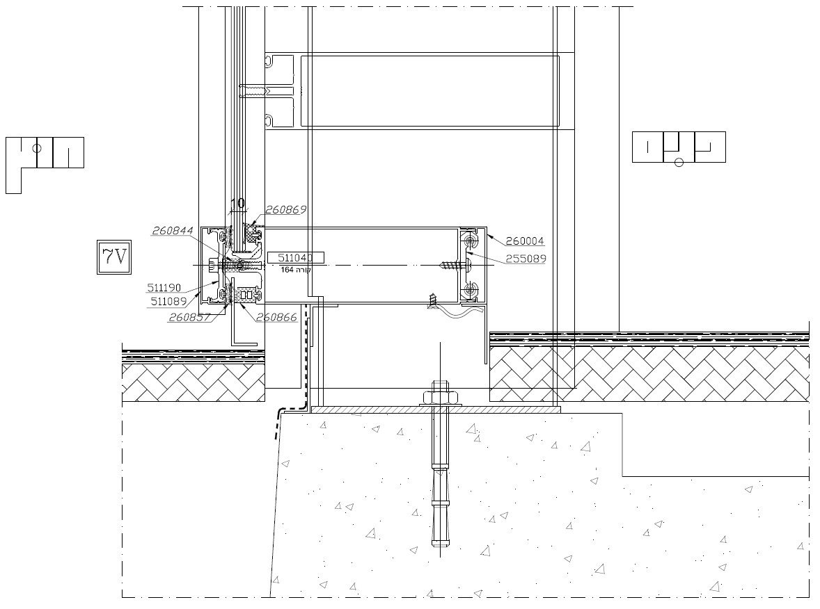
חוזק העוגנים של קיר המסך לתקרות הבניין מתוכנן כך שעומסי הרוח ורעידות האדמה יועברו ממנו אל תקרות ועמודי הבניין.
מאפיינים ויישומים:
מערכות קירות המסך הינם גמישים לעיצוב וקלים לבנייה.
לקיר המסך תצורות שונות אשר מאפשרות לחבר למערכת גימורים שונים ולעצב את החיפויים של קירות המסך בצורות ועיצובים שונים (משולשים, טרפזים וכולי).
לעיצוב חדשני ניתן להוסיף פרופילים בצורות שונות ומגוונות, כגון: דוגמת "בול-נוז", "חרבות" (ראו תמונות לדוגמא מטה) ועל פי תכנון ודרישה אדריכלית
.
ניתן לתכנן את תצורת קירות המסך באפקטים ויזואליים שונים:
REGULAR GLAZING
אפקט ויזואלי של רשת בזויות ישרות, נוצר ע"י פסי אלומיניום אופקיים ואנכיים |
 |
SRTACTURAL GLAZING
זכוכית חלקה ונקייה עם קווי הפרדה עדינים בין לוחות הזכוכית, נוצר ע"י הדבקת הזכוכית ללא מכסי אלומיניום כלל |
 |
FRAMED SRTACTURAL GLAZING
זכוכית חלקה ונקייה עם קווי הפרדה עדינים בין לוחות הזכוכית, נוצר ע"י זיגוג הזכוכית בהדבקה לתוך מסגרות אלומיניום סמויות |
 |
DRY GLAZING
ריבועי זכוכית עם מסגרות עדינות, נוצר כתוצאה מזיגוג הזכוכית בעזרת אטמים בלבד לתוך סרגלי אלומיניום דקים ונקיים |
 |
HORIZONTAL & VERTICAL TWO SIDED
פסי אלומיניום אופקיים/אנכיים ובניהם רצועות זכוכית, הנותנות דגש לקווים האופקיים/האנכיים במבנה, נוצר כתוצאה מזיגוג הזכוכית בעזרת אטמים במימד האופקי/האנכי והדבקה במימד האנכי או האופקי |
 |
ניתן לשילוב עם סדרות אחרות:
חלונות ציר, דלתות פתיחה ציר, סדרות הזזה, חלונות תרמיים, דלתות הזזה חשמליות וכמו כן דלתות ציר חשמליות בכניסה ללובאים,
מערכות לאוורור ושחרור עשן - אשר תוכננו בהתאמה מלאה למערכת קיר המסך.
ניתן לשלב עוד בחיפויי פחי אלומיניום, בפחי אלוקובונד, גגונים ועוד.
זיגוג:
במערכת קירות המסך ניתן להתאים כל עובי זיגוג נדרש או להשתמש במילואות שאינן זכוכית כמו אלוקובונד, פח אלומיניום וכדומה.
זכוכיות ניתן לזגג מעובי 6 מ"מ ועד 41 מ"מ.
אפשרויות צבע:
את פרופילי האלומיניום של קירות המסך ניתן לצבוע בכל קשת הצבעים מצבעי ה-RAL, צבעי IRON מגורען וציפוי אילגון אנודייז.
תקנים:
למערכות קירות המסך תקנים שונים, חלקם עברו בדיקות תקינה CWCT הבריטי,
תקנים אירופאים ותקן של מעבדת מכון התקנים הישראלי בהתאמה מלאה לתקן הישראלי המעודכן לקירות מסך - ת"י 1568
.